
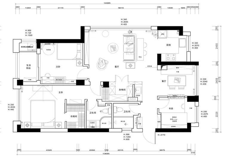
18万三室简欧浪漫风~
上传者:来自网络
发布时间:2020-04-26 14:27
名称:18万三室简欧浪漫风~
格式:
尺寸:
装修介绍
相关装修攻略
10秒钟免费获取设计方案
10秒登记,保驾护航帮您轻松装出幸福空间740万业主的共同选择
申请成功后您将免费获得
一对一服务
保驾护航家装顾问
上门量房
3-5家正规装修公司
方案和报价
3-5份专业设计
公司流程
为您指导签订装修
装修保障金
免费申请









